Advertido un error en dicho decreto, publicado en el Diario Oficial de Galicia número 150, de 7 de agosto de 2018, es necesario hacer la siguiente rectificación:
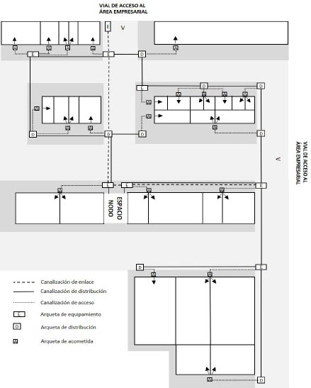
En la página 36523, debe incluirse correctamente la siguiente figura:
I. Disposiciones generales
Consellería de Hacienda
CORRECCIÓN DE ERRORES. Decreto 77/2018, de 26 de julio, por el que se regulan las infraestructuras de soporte y los espacios de reserva para el despliegue de redes de comunicaciones electrónicas en áreas empresariales promovidas por las administraciones públicas de Galicia.
Advertido un error en dicho decreto, publicado en el Diario Oficial de Galicia número 150, de 7 de agosto de 2018, es necesario hacer la siguiente rectificación:
En la página 36523, debe incluirse correctamente la siguiente figura:
En la figura adjunta se muestra un ejemplo de infraestructura de canalizado de telecomunicación en la que se pueden apreciar las diversas disposiciones contempladas en los apartados anteriores.
Figura 1. Esquema tipo de infraestructura de soporte de red
de telecomunicaciones en un área empresarial