Anúnciase, de conformidade co disposto no artigo 82.2 da Lei 2/2016, do solo de Galicia, e 199.2 do seu regulamento, que o Concello Pleno en sesión ordinaria, do 11 de febreiro de 2022, adoptou entre outros, o seguinte acordo, cuxa parte dispositiva di:
«O Concello Pleno en sesión extraordinaria en substitución da ordinaria do día 11 de febreiro do ano 2022 adoptou, entre outros, o seguinte acordo:
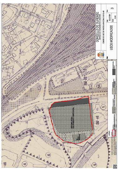
5.1. Modificación puntual do PXOU de 1986. Cambio de uso da parcela sita na estrada de Vigo, 1B (referencia catastral 2497004NG9826S0001DK), antigamente destinada a estación de autobuses de Ourense.
De conformidade co informe xurídico do Servizo de Planeamento e Xestión Urbanística, do 8 de agosto de 2021, e coa proposta que contén da Concellería de Urbanismo, do 12 de agosto de 2021, a Comisión de Pleno, por seis votos a favor do grupo municipal do Partido Popular, do grupo municipal de Democracia Ourensana, do grupo municipal de Cidadáns e de María Teresa Rodríguez Garrido, concelleira non adscrita; e catro abstencións do grupo municipal socialista e do grupo municipal do BNG, adopta o seguinte acordo:
Ditaminar favorablemente e elevar ao Pleno a seguinte proposta:
1º. Aprobar, por pedimento da Xunta de Galicia, Consellería de Política Social, Secretaría Xeral Técnica, a modificación puntual do Plan xeral de ordenación urbana de 1986 para o cambio de uso parcial da parcela sita na estrada de Vigo, 1B (referencia catastral 2497004NG9826S0001DK) antigamente destinada de xeito parcial a estación de autobuses de Ourense e da súa contorna, pasando as partes dela e da contorna cualificadas co uso de sistema xeral de transportes e comunicacións aos usos de sistema xeral de equipamento asistencial, sistema local de equipamento deportivo e sistema local de zonas de espallamento e parques, segundo a documentación técnica que consta no expediente do 12 de xullo de 2021 e co CSV FG607QL6A3T791K7.
2º. Ordenar a publicación da dita documentación técnica no Diario Oficial de Galicia, ao abeiro do disposto nos artigos 82.2 da Lei de Galicia 2/2016 e 199.2 do seu regulamento.
3º. Remitir esta modificación puntual ao Rexistro de Planeamento Urbanístico de Galicia, ao abeiro dos artigos 88 da Lei de Galicia 2/2016 e 209 do seu regulamento.
Todo iso con base nos informes emitidos polo Servizo de Planeamento e Xestión Urbanística (técnicos de datas do 9 de xuño de 2021 e do 12 de xullo de 2021 e xurídicos de datas do 10 de xuño de 2021 e do 11 de agosto de 2021), que se integran neste acordo como motivación del e dos que se dará traslado á Administración autonómica promotora mediante a súa copia simple que serán achegados xunto coa notificación que deste acordo sexa practicada.
Réxime de recursos.
Contra este acordo, que pon fin á vía administrativa, non pode interpoñerse recurso de reposición potestativo ante o órgano que o ditou ao abeiro do disposto nos artigos 84.1 da Lei de Galicia 2/2016 e 201.1 do seu regulamento, por tratarse dunha disposición de carácter xeral.
Cabe interpoñer directamente recurso contencioso-administrativo, ante o Tribunal Superior de Xustiza de Galicia, no prazo de dous meses, contado desde o día seguinte ao da recepción da súa notificación ou da súa publicación, de conformidade cos artigos 8.1, 10.1.a) e 46 da Lei 29/1998, do 13 de xullo, da xurisdición contencioso-administrativa.
Todo iso sen prexuízo de que poida interpoñerse calquera outro recurso ou acción que xulgue procedente.
O Pleno do Concello por unanimidade dos vinte concelleiros presentes dos vinte e sete que conforman a corporación, isto é, por maioría absoluta dos seus membros, adoptou o seguinte acordo: aprobar a proposta».
Estará dispoñible o contido íntegro do instrumento de planeamento nas webs www.ourense.gal e www.planeamentourbanistico.xunta.es/siotuga
Achéganse como anexo os planos do cambio de uso que constan no expediente.
Ourense, 15 de febreiro de 2022
Gonzalo Pérez Jacome
Alcalde presidente
ANEXO


