A los efectos previstos en el artículo 28 del reglamento para la ejecución de la Ley 13/1989, de 10 de octubre, de montes vecinales en mano común, el Decreto 260/1992, de 4 de septiembre, de conformidad con lo dispuesto en el artículo 45.1 de la Ley 39/2015, de 1 de octubre, del procedimiento administrativo común de las administraciones públicas, se hace público que el Jurado Provincial de Montes Vecinales en Mano Común de Lugo, en la sesión que tuvo lugar el 11.1.2021 en la sala de juntas de la Jefatura Territorial de la Consellería de Presidencia, Administraciones Públicas y Justicia, bajo la presidencia de María Olga Iglesias Fontal, y con la asistencia de los vocales Miguel Ángel Cela González, Mª Esmeralda Mouriz Fernández y Antonio José López-Acuña Herrero, y de la secretaria Lucía Belver Quiroga, dictó la resolución de clasificar como vecinal en mano común el siguiente monte:
– Nombre: Marco.
– Pertenencia: vecinos de la parroquia de O Burgo.
– Parroquia: O Burgo.
– Ayuntamiento: Lugo.
– Superficie: 6,60 hectáreas.
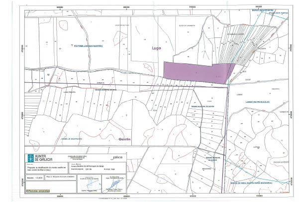
En la siguiente tabla se indican las referencias catastrales de las parcelas clasificadas así como de las colindantes. El plano que figura en el anexo, al final de este anuncio, facilita su localización.
|
Parcelas clasificadas |
Parcelas colindantes |
|
|
27900A19400043 |
Norte |
27900G50200134 27900G50200133 27900G50200132 27900A19400050 27900A19400051 27900A19400060 27900A19400061 |
|
27900A19400062 27900A19400063 27900A19400064 27900A19400065 27900A19400066 27900A19400067 27900A19400068 27900A19400069 27900A19400070 |
||
|
Este |
27900A19400092 |
|
|
Sur |
27023A08100100 27023A08100109 27023A08100118 27023A08100119 27023A08100120 27023A08100121 27023A08100122 27023A08100123 |
|
|
Oeste |
27900G50200134 |
|
|
27900A19400092 |
Norte |
27900A19400071 27900A19400072 27900A19400074 27900A19400076 27900A19400078 |
|
Este |
27900A19400093 |
|
|
Sur |
27023A08100100 |
|
|
Oeste |
27900A19400043 |
|
Contra esta resolución, desde el día siguiente al de su publicación en el Diario Oficial de Galicia, podrá interponerse recurso potestativo de reposición ante el Jurado Provincial de Clasificación de Montes Vecinales en Mano Común de Lugo en el plazo de un mes, o bien directamente recurso contencioso-administrativo ante el Juzgado del Contencioso-Administrativo de Lugo en el plazo de dos meses, de acuerdo con lo dispuesto en los artículos 123 y 124 de la Ley 39/2015, de 1 de octubre, del procedimiento administrativo común de las administraciones públicas, y con el artículo 46 de la Ley 29/1998, de 13 de julio, de la jurisdicción contencioso-administrativa. Lo anterior, en relación con el precepto legal recogido en el artículo 12 de la Ley de montes vecinales en mano común y en el artículo 28 de su reglamento.
Lugo, 14 de enero de 2021
María Olga Iglesias Fontal
Presidenta del Jurado Provincial de Clasificación de Montes
Vecinales en Mano Común de Lugo
ANEXO I


