En virtud de lo ordenado por el artículo 403.1 del Reglamento 143/2016, de 22 de septiembre, de la Ley del suelo de Galicia, se publica el Acuerdo del Pleno del Ayuntamiento de Pontecesures, de 23 de marzo de 2023, de ratificación y aprobación del convenio urbanístico de planeamiento firmado el 4.4.2023, así como el texto íntegro de este:
Primero. Aprobar y ratificar el texto definitivo del convenio urbanístico de planeamiento entre el Ayuntamiento de Pontecesures y la mercantil Nestlé España, S.A. con el siguiente texto:
Convenio urbanístico para la formulación y desarrollo de la modificación puntual número 1 del plan general de ordenación municipal de pontecesures
Pontecesures, 4 de abril de 2023.
Reunidos:
Juan Manuel Vidal Seage, alcalde del Ayuntamiento de Pontecesures.
Julio Ribeiro Diniz, con NIE Y9138729S y domicilio en A Cova 4, 36649 Pontecesures.
Intervienen:
Juan Manuel Vidal Seage en nombre y representación del Ayuntamiento de Pontecesures, en virtud de lo previsto en el artículo 21 de la Ley 7/1985, de 2 de abril, reguladora de las bases del régimen local.
Julio Ribeiro Diniz, en nombre y representación de Nestlé España, S.A., con CIF A08005449 y domicilio en Clara Campoamor 2, 08950 de Esplugues de Llobregat, acredita su representación mediante poder 184 (ciento ochenta y cuatro) de 26.1.2022, otorgado por José Vicente Torres Montero, notario del Ilustre Colegio de Cataluña.
Consideraciones previas:
Primero. Situación física
La actual fábrica de Nestlé España, S.A. en Pontecesures fue construida en la zona oeste del núcleo urbano, al borde del río Ulla, hace ya más de 80 años. Se trata de un complejo industrial que supera los 12.000 metros cuadrados, dedicado a la transformación de productos lácteos, siendo, por tanto, una fuente de riqueza no solo para la población local, sino también para una amplia zona de la que se suministra de materia prima.
Para mantener y ampliar capacidad de producción, la instalación precisa de la construcción de más edificaciones para albergar nuevos procesos productivos y zonas de almacenaje y distribución, siendo su única posibilidad de expansión en continuidad la zona situada al este de la actual fábrica, ya que por el norte limita con el río Ulla, vial portuario de por medio, y por el oeste y el sur limita con viviendas particulares y viales municipales.
Segundo. Situación urbanística
El Ayuntamiento de Pontecesures cuenta con un plan general de ordenación municipal (PGOM) que fue aprobado definitivamente por el Pleno municipal en fecha 27.6.2003, de conformidad con lo establecido en la disposición transitoria tercera de la Ley 9/2002, de ordenación urbanística y protección del medio rural de Galicia.
Según la ordenación establecida en el PGOM, los terrenos en los que se asienta la fábrica se encuentran situados dentro de la delimitación de suelo urbano, con una parte en suelo urbano consolidado (donde se sitúan las instalaciones fabriles propiamente dichas y una zona de aparcamiento) y otra en suelo urbano no consolidado (zona de antiguos jardines, viviendas vinculadas a la fábrica, ...).
La parte de suelo urbano consolidado está calificada dentro de la ordenanza de edificación de uso industrial (IN), y la parte en suelo urbano no consolidado está delimitada como una única área de reparto, la número 5, y un único polígono, el P-5.
De manera resumida, según la normativa del PGOM, los parámetros aplicables en la ordenanza IN y en el polígono P-5 son los siguientes:
Ordenanza IN:
• Parcela y frente mínimos edificables: la existente.
• Ocupación máxima de parcela neta 60 %.
• Altura máxima edificación: B +1 / 9 m.
• Edificabilidad máxima: 0,60 m2/m2.
• Retranqueos a linderos: 5 m.
• Uso permitidos: industrial en todas las categorías.
Polígono P-5:
• Edificabilidad lucrativa máx.: 0,627168 m2/m2.
• Zonas verdes: 2.547 m2.
• Uso característico: industrial.
• Ordenación detallada: el plan prevé una ordenación con un tramo de calle de 10 metros de sección por el lateral este (en paralelo y junto a la vía ferroviaria); una zona verde pública, con una forma sensiblemente triangular, al sur; y zona edificable en ordenanza IN el resto del ámbito.
Resulta relevante destacar que en el extremo noreste del ámbito de actuación existe una discrepancia entre la delimitación establecida en el plan para el sistema general portuario, con el que limita el P-5 por el norte, y la delimitación real de los terrenos portuarios, ya que hay terrenos no adscritos o no asignados a Puertos de Galicia que están clasificados en el PGOM como sistema general portuario, y terrenos adscritos o asignados a Puertos de Galicia que no están clasificados en el PGOM como sistema general portuario.
a. terrenos adscritos o asignados a Puertos de Galicia clasificados como sistema local viario, y como sistema local de espacios libres y zonas verdes.
b. terrenos clasificados como sistema general portuario y no adscritos o asignados a Puertos de Galicia.
Tercero. Interés y objetivos de la modificación de la ordenación
En la delimitación del polígono P-5 y en la ordenación detallada prevista en el PGOM de 2003 se pueden observar una serie de determinaciones que resultan incoherentes con los objetivos planteados actualmente por el Ayuntamiento para esa zona del municipio; en concreto, para la consecución de una conexión peatonal entre el lugar de Porto (Camiño dos Mariñeiros) y la zona portuaria, conexión que permitiría establecer unos recorridos seguros y amables entre ambas zonas y, por tanto, entre Porto y el centro del núcleo urbano de Pontecesures.
Con la ordenación vigente, para poder materializar el vial previsto entre Porto y la zona portuaria, no sería suficiente con desarrollar el polígono P-5, ya que una parte del vial (en el extremo sur, Porto) estaría situada en suelo urbano consolidado.
En esta situación, se plantea como mejor alternativa la modificación de la delimitación del polígono, de manera que se genere ya con su desarrollo la conexión entre la zona norte (zona portuaria) y la sur (Porto-Camiño dos Mariñeiros), sin necesidad de posteriores actuaciones urbanísticas (expropiación, ...).
Al mismo tiempo, se considera mejor solución la de plantear una conexión que excluya el tráfico rodado, ya que este tráfico no precisa de una conexión tan directa, existiendo alternativas para los coches que circulan por el perímetro oeste de la fábrica. Es por ello que se plantea que la conexión sea peatonal y ciclista, a modo de parque lineal, de manera que al mismo tiempo se reubica de una manera más integrada y funcional la zona verde prevista actualmente en el PGOM, ya que, tal como está configurada, probablemente acabaría siendo un espacio residual desconectado de la trama urbana.
También resulta necesario, desde el punto de vista de los intereses municipales, corregir la inadecuada clasificación de los terrenos al noreste del polígono, clasificando como sistema general portuario los que están adscritos o asignados a Puertos de Galicia, y como sistema local de espacios libres y zonas verdes los que no son de titularidad autonómica, de tal manera que esta zona verde serviría como remate del parque lineal planteado dentro del polígono.
Por otra parte, desde el punto de vista de los intereses de la mercantil, resultaría necesaria una ordenación que permita generar una ampliación en continuidad de las instalaciones existentes, con el mayor aprovechamiento posible de los terrenos disponibles, teniendo en cuenta que, una vez desarrollado el polígono P-5, las posibilidades de crecimiento están limitadas, como se indicaba anteriormente, por la existencia de infraestructuras de distinta titularidad (línea ferroviaria al este, viviendas y viales municipales al oeste y sur, y vial portuario y río Ulla al norte).
También resultaría adecuado, tanto desde el punto de vista de los intereses municipales como de los de la empresa, ajustar la delimitación del polígono por el sur, de manera que se ajusten los límites del ámbito a la realidad parcelaria existente, o a la que resulte de una posible permuta que facilite que, una vez iniciado el desarrollo del polígono (incluida la conexión con el Camiño dos Mariñeiros), la empresa sea propietaria única de los terrenos afectados.
Teniendo en cuenta la situación urbanística descrita, se plantea como solución más adecuada, sino la única, la de modificar la ordenación prevista en el planeamiento vigente, de 2003, adaptándolo a las necesidades actuales tanto del municipio como de la empresa. Esta modificación del PGOM incluiría, por economía administrativa, la ordenación detallada del suelo urbano no consolidado.
Cuarta. Convenio, objeto y contenido
Sobre las anteriores premisas, y de acuerdo con lo previsto en el artículo 165.1 de la Ley 2/2016, del suelo de Galicia (LSG), que establece que podrán celebrarse convenios entre las administraciones públicas y personas privadas al objeto de colaborar y desarrollar de manera más eficaz la actividad urbanística, se plantea la formalización de este convenio de planeamiento para que sirva para establecer las bases y los compromisos de colaboración entre las partes implicadas (la Administración y la empresa) para formular y tramitar una modificación puntual del Plan general de ordenación municipal, con el fin de conseguir de una manera más ágil los objetivos planteados, que son, en síntesis, los siguientes:
• Establecer una ordenación detallada del polígono P-5 que permita:
– Un crecimiento en continuidad de las instalaciones de la fábrica existente.
– La creación de una zona verde que permita una conexión peatonal entre Porto y la zona portuaria, en paralelo a la vía férrea.
• Modificar la delimitación del polígono P-5 de manera que:
– La conexión peatonal entre Porto y la zona portuaria quede íntegramente situada dentro del polígono.
– Se regularice el límite sur del polígono, de manera que se reduzca la incidencia sobre propiedades de particulares y que, al mismo tiempo, se facilite la formalización de una permuta con el propietario de los terrenos necesarios para abrir la conexión hasta Porto.
• Ajustar los parámetros urbanísticos de la ordenanza IN de suelo urbano consolidado, para facilitar el crecimiento en continuidad de las instalaciones de la fábrica.
• Corregir la inadecuada clasificación de terrenos portuarios.
Quinta. Ámbito del convenio
De acuerdo con lo establecido en el artículo 401.2 del Reglamento de la LSG (RLSG), aprobado mediante el Decreto 143/2016, se incluye como anexo al presente convenio la identificación gráfica del ámbito espacial afectado por la modificación puntual planteada.
Estipulaciones:
Primera.
El presente convenio urbanístico de planeamiento se suscribe para establecer un marco de colaboración entre el Ayuntamiento de Pontecesures, como titular de la competencia en materia de planeamiento urbanístico en el municipio, y Nestlé España, S.A., como propietaria mayoritaria de los terrenos incluidos en el polígono P-5, con la finalidad de favorecer la formulación y tramitación de una modificación puntual del Plan general de ordenación municipal que permita alcanzar los objetivos anteriormente expuestos.
Segunda. Compromisos asumidos por Nestlé España, S.A.
Nestlé España, S.A. se compromete a desarrollar urbanísticamente los terrenos incluidos en el polígono P-5, de conformidad con la ordenación que se establecerá en el planeamiento derivado del presente convenio. Para ello, asume los siguientes compromisos:
1. Formulación del borrador de la modificación puntual y del documento ambiental estratégico, en el plazo máximo de un mes desde la aprobación del convenio. Los documentos se ajustarán a los criterios de ordenación establecidos en la estipulación cuarta, y se incluirán también las modificaciones de los mismos que pudieran resultar necesarias por requerimientos de los organismos que intervengan en su tramitación.
2. Formulación del estudio ambiental estratégico, en caso de ser requerido por el órgano ambiental competente, en el plazo máximo de 3 meses desde su requerimiento.
3. Formulación del proyecto de modificación puntual del PGOM, en el plazo máximo de 3 meses desde la decisión adoptada por el órgano ambiental competente. El documento se ajustará a los criterios de ordenación establecidos en la estipulación cuarta, y se incluirá también las modificaciones del mismo que pudieran resultar necesarias por requerimientos de los organismos que intervengan en su tramitación.
4. Formulación de los documentos de carácter técnico (estudios arqueológicos, de paisaje, de movilidad, ...) que pudieran ser requeridos por los distintos organismos que intervengan en la tramitación de la modificación puntual.
5. Presentación de los documentos técnico-jurídicos necesarios para el desarrollo del polígono P-5 (proyectos de equidistribución y de urbanización), en el plazo máximo de 3 meses desde la aprobación definitiva de la modificación puntual.
6. Ejecución de las obras de urbanización correspondientes al polígono P-5 (aparcamiento y zona verde-parque lineal) y las de la zona verde al noreste del polígono (remate del parque lineal), en las condiciones y plazos que se definan en el proyecto de urbanización.
Todos los documentos presentados por la empresa deberán ajustarse a las determinaciones de la legislación urbanística y ambiental aplicable en el momento de su presentación.
Tercera. Compromisos asumidos por el Ayuntamiento de Pontecesures
El Ayuntamiento de Pontecesures se compromete a realizar la tramitación de la modificación puntual de la manera más ágil y rápida que sea factible, para hacerla aplicable en el menor tiempo posible.
En aras a conseguir la celeridad pretendida, en caso de que antes de la ratificación del presente convenio la empresa presente el borrador de la modificación puntual y del documento ambiental estratégico, se procederá a su tramitación simultánea ante el órgano ambiental competente, sin que esto genere derecho a indemnización alguna en el caso de que finalmente el convenio no fuese ratificado por el Pleno municipal.
En relación con la edificabilidad correspondiente al 10 % de cesión del aprovechamiento lucrativo que ha de asignarse al Ayuntamiento de Pontecesures, de conformidad con lo dispuesto en el artículo 29 de la LSG, se acuerda en el presente convenio la posibilidad de monetizar dicha cesión, de manera que Nestlé España, S.A. sea el propietario único de la parcela de resultado con aprovechamiento lucrativo del Polígono P5.
Por tanto, el Ayuntamiento de Pontecesures se compromete a admitir la sustitución del deber legal de cesión del aprovechamiento urbanístico correspondiente al Ayuntamiento mediante el pago de una cantidad en metálico. Para esto, y de conformidad con lo previsto en el artículo 400.2 del RLSG, antes de la formalización del proyecto de equidistribución correspondiente se suscribirá el preceptivo convenio urbanístico para la ejecución del planeamiento, en el que se incorporará una valoración pericial realizada de conformidad con lo establecido en el texto refundido de la Ley de suelo y rehabilitación urbana (Real decreto legislativo 7/2015, de 30 de octubre) y en el Reglamento de valoraciones de la Ley de Suelo (el Real decreto 1492/2011, de 24 de octubre), y que deberá estar expresamente validada por el personal técnico competente del Ayuntamiento.
Cuarta. Ordenación propuesta
Se establecen unos parámetros básicos a efectos de acotar la ordenación detallada que se incluirá en la modificación puntual:
• Delimitación del polígono P-5: se ajustará por el lado sur, permitiendo la conexión con el Camiño dos Mariñeiros, y facilitando la regularización parcelaria con el propietario colindante.
• Ordenación detallada del polígono P-5:
– Generación de una zona verde lineal en el borde este, con una anchura de 10 metros que se podrá reducir en el tramo final (el de conexión con el Camiño dos Mariñeiros).
– Generación de una superficie para aparcamiento de uso público que permita el cumplimiento de los estándares establecidos en el artículo 42 de la LSG.
– La zona edificable resultante (la superficie total menos la de zona verde y la de aparcamiento) se regirá por la ordenanza de edificación industrial, con los parámetros urbanísticos que de ella deriven.
• Ordenanza IN: se modificarán los siguientes parámetros urbanísticos:
– Ocupación máxima: pasará del 60 % al 100 % de la superficie resultante una vez descontada la superficie afectada por los retranqueos mínimos a linderos.
– Edificabilidad máxima: pasará de 0,60 m2/m2 a 0,78 m2/m2.
– Retranqueos a linderos: mínimo 5 metros, excepto en el supuesto de linderos entre parcelas del mismo propietario, en el que se permitirá el adosamiento.
• Clasificación de suelo: además de los cambios de clasificación derivados de la nueva delimitación del polígono P-5 (los terrenos que se incluyan pasarán a clasificarse como suelo urbano no consolidado, y los que se excluyan, como suelo urbano consolidado ordenanza de edificación en núcleo grado extensivo), se clasificarán como sistema general portuario los terrenos de Puertos de Galicia (zona a en el gráfico 2) y como sistema local de espacios libres y zonas verdes los terrenos que non son de Puertos de Galicia (zona b en el gráfico 2).
Quinta. Subrogación del propietario de los terrenos
La enajenación de la totalidad o parte de los terrenos propiedad de los firmantes del presente convenio no modificará ni alterará los compromisos contraídos en el mismo. Los nuevos propietarios quedarán subrogados en los derechos y obligaciones del transmitente, el cual deberá hacer constar los compromisos asumidos en los actos traslativos del dominio y, en tal caso, poner en conocimiento del Ayuntamiento de Pontecesures el hecho de la transmisión y los datos de los nuevos titulares. A tal efecto, el transmitente deberá presentar copia autorizada de la/las escritura/s de transmisión de dominio y subrogación de los adquirentes en los derechos y obligaciones derivados del presente convenio.
Sexta. Modificaciones y eficacia del convenio
La validez del presente convenio queda supeditada a su sometimiento a información pública por el plazo legalmente establecido, y a su ratificación por el Pleno municipal, así como a los demás requisitos contemplados en la legislación urbanística vigente.
En el supuesto de que durante la tramitación de la modificación puntual surgiera la necesidad de alterar las determinaciones previstas en el presente convenio, como consecuencia de la exigencias que pudieran plantear los distintos organismos sectoriales con competencia en la materia, el Ayuntamiento de Pontecesures se compromete a notificar a la otra parte esta situación, concediendo un plazo de 30 días hábiles para proceder a reconsiderar y, de ser necesario, formalizar un nuevo convenio ajustado a las nuevas circunstancias.
En prueba de conformidad con todo lo acordado, firman el presente convenio por duplicado ejemplar y a un solo efecto, en el lugar y la fecha indicados en el encabezamiento.
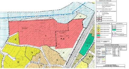
ANEXO
Ámbito afectado por el convenio
Segundo. Notificar y emplazar a la persona o personas interesadas, a efectos de que se firme el convenio urbanístico arriba referenciado, en un plazo de quince días desde la notificación de la aprobación del texto definitivo.
Transcurrido este plazo sin que el convenio se haya firmado, quedará sin efecto.
Terceiro. Publicar el texto íntegro del convenio, con su acuerdo de aprobación, en el Diario Oficial de Galicia.
Cuarto. Anotar el convenio en el Registro de Convenios Urbanísticos del Ayuntamientoo y custodiar un ejemplar completo del texto definitivo de este y de toda su documentación anexa en el archivo administrativo municipal.
Pontecesures, 16 de junio de 2023
Juan Manuel Vidal Seage
Alcalde
