En virtude do ordenado polo artigo 403.1 do Regulamento 143/2016, do 22 de setembro, da Lei do solo de Galicia, publícase o Acordo do Pleno do Concello de Pontecesures, do 23 de marzo de 2023, de ratificación e aprobación do convenio urbanístico de planeamento asinado o 4.4.2023, así como o texto íntegro deste:
Primeiro. Aprobar e ratificar ou texto definitivo do convenio urbanístico de planeamento entre o Concello de Pontecesures e a mercantil Nestlé España, S.A., co seguinte texto:
Convenio urbanístico para a formulación e desenvolvemento da modificación puntual número 1 do Plan xeral de ordenación municipal de Pontecesures.
Pontecesures, 4 de abril de 2023.
Reunidos:
Juan Manuel Vidal Seage, alcalde do Concello de Pontecesures.
Julio Ribeiro Diniz, con NIE Y9138729S e domicilio na Cova 4, 36649 Pontecesures.
Interveñen:
Juan Manuel Vidal Seage, en nome e representación do Concello de Pontecesures, en virtude do previsto no artigo 21 da Lei 7/1985, do 2 de abril, reguladora das bases do réxime local.
Julio Ribeiro Diniz, en nome e representación de Nestlé España, S.A., con CIF A08005449 e domicilio en Clara Campoamor 2, 08950 de Esplugues de Llobregat, acredita a súa representación mediante poder 184 (cento oitenta e catro) do 26.1.2022, outorgado por José Vicente Torres Montero, notario do Ilustre Colexio de Cataluña.
Consideracións previas:
Primeiro. Situación física
A actual fábrica de Nestlé España, S.A. en Pontecesures foi construída na zona oeste do núcleo urbano, ao bordo do río Ulla, hai xa máis de 80 anos. Trátase dun complexo industrial que supera os 12.000 metros cadrados, dedicado á transformación de produtos lácteos; por tanto, é unha fonte de riqueza non só para a poboación local, senón tamén para unha ampla zona da que se fornece de materia prima.
Para manter e ampliar capacidade de produción, a instalación precisa da construción de máis edificacións para albergar novos procesos produtivos e zonas de almacenaxe e distribución, e a súa única posibilidade de expansión en continuidade é a zona situada ao leste da actual fábrica, xa que polo norte limita co río Ulla, vía portuaria polo medio, e polo oeste e o sur limita con vivendas particulares e vías municipais.
Segundo. Situación urbanística
O Concello de Pontecesures conta cun plan xeral de ordenación municipal (PXOM) que foi aprobado definitivamente polo Pleno municipal o 27.6.2003, de conformidade co establecido na disposición transitoria terceira da Lei 9/2002, de ordenación urbanística e protección do medio rural de Galicia.
Segundo a ordenación establecida no PXOM, os terreos en que se asenta a fábrica atópanse situados dentro da delimitación de solo urbano, cunha parte en solo urbano consolidado (onde se sitúan as instalacións fabrís propiamente ditas e unha zona de aparcadoiro) e outra en solo urbano non consolidado (zona de antigos xardíns, vivendas vinculadas á fábrica, ...).
A parte de solo urbano consolidado está cualificada dentro da ordenanza de edificación de uso industrial (IN), e a parte en solo urbano non consolidado está delimitada como unha única área de repartición, a número 5, e un único polígono, o P-5.

De maneira resumida, segundo a normativa do PXOM, os parámetros aplicables na ordenanza IN e no polígono P-5 son os seguintes:
Ordenanza IN:
• Parcela e fronte mínimos edificables: a existente.
• Ocupación máxima de parcela neta 60 %.
• Altura máxima edificación: B +1 / 9 m.
• Edificabilidade máxima: 0,60 m2/m2.
• Recuamentos a lindeiros: 5 m.
• Uso permitidos: industrial en todas as categorías.
Polígono P-5:
• Edificabilidade lucrativa máx.: 0,627168 m2/m2.
• Zonas verdes: 2.547 m2.
• Uso característico: industrial.
• Ordenación detallada: o plan prevé unha ordenación cun treito de rúa de 10 metros de sección polo lateral leste (en paralelo e xunto á vía ferroviaria); unha zona verde pública, cunha forma sensiblemente triangular, ao sur; e zona edificable en ordenanza IN o resto do ámbito.
Resulta relevante destacar que no extremo nordés do ámbito de actuación existe unha discrepancia entre a delimitación establecida no plan para o sistema xeral portuario, co que limita o P-5 polo norte, e a delimitación real dos terreos portuarios, xa que hai terreos non adscritos ou non asignados a Portos de Galicia que están clasificados no PXOM como sistema xeral portuario, e terreos adscritos ou asignados a Portos de Galicia que non están clasificados no PXOM como sistema xeral portuario.

a. terreos adscritos ou asignados a Portos de Galicia clasificados como sistema local viario, e como sistema local de espazos libres e zonas verdes.
b. terreos clasificados como sistema xeral portuario e non adscritos ou asignados a Portos de Galicia.
Terceiro. Interese e obxectivos da modificación da ordenación
Na delimitación do polígono P-5 e na ordenación detallada prevista no PXOM de 2003 pódense observar unha serie de determinacións que resultan incoherentes cos obxectivos expostos actualmente polo Concello para esa zona do municipio; en concreto, para a consecución dunha conexión peonil entre o lugar de Porto (Camiño dos Mariñeiros) e a zona portuaria, conexión que permitiría establecer uns percorridos seguros e amables entre ambas as zonas e, por tanto, entre Porto e o centro do núcleo urbano de Pontecesures.
Coa ordenación vixente, para poder materializar a vía prevista entre Porto e a zona portuaria, non sería suficiente con desenvolver o polígono P-5, xa que unha parte das vías (no extremo sur, Porto) estaría situada en solo urbano consolidado.
Nesta situación, exponse como mellor alternativa a modificación da delimitación do polígono, de maneira que se xere xa co seu desenvolvemento a conexión entre a zona norte (zona portuaria) e a sur (Porto-Camiño dos Mariñeiros), sen necesidade de posteriores actuacións urbanísticas (expropiación, ...).
Ao mesmo tempo, considérase mellor solución a de propor unha conexión que exclúa o tráfico rodado, xa que este tráfico non precisa dunha conexión tan directa, e existen alternativas para os coches que circulan polo perímetro oeste da fábrica. É por iso que se propón que a conexión sexa peonil e ciclista, a modo de parque lineal, de maneira que ao mesmo tempo se recoloca dunha maneira máis integrada e funcional a zona verde prevista actualmente no PXOM, xa que, tal como está configurada, probablemente acabaría sendo un espazo residual desconectado da trama urbana.
Tamén resulta necesario, desde o punto de vista dos intereses municipais, corrixir a inadecuada clasificación dos terreos ao nordés do polígono, clasificando como sistema xeral portuario os que están adscritos ou asignados a Portos de Galicia, e como sistema local de espazos libres e zonas verdes os que non son de titularidade autonómica, de tal maneira que esta zona verde serviría como remate do parque lineal exposto dentro do polígono.
Por outra banda, desde o punto de vista dos intereses da mercantil, resultaría necesaria unha ordenación que permita xerar unha ampliación en continuidade das instalacións existentes, co maior aproveitamento posible dos terreos dispoñibles, tendo en conta que, unha vez desenvolto o polígono P-5, as posibilidades de crecemento están limitadas, como se indicaba anteriormente, pola existencia de infraestruturas de distinta titularidade (liña ferroviaria ao leste, vivendas e vías municipais ao oeste e sur, e vía portuaria e río Ulla ao norte).
Tamén resultaría adecuado, tanto desde o punto de vista dos intereses municipais como dos da empresa, axustar a delimitación do polígono polo sur, de maneira que se axusten os límites do ámbito á realidade parcelaria existente, ou á que resulte dunha posible permuta que facilite que, unha vez iniciado o desenvolvemento ao polígono (incluída a conexión co Camiño dos Mariñeiros), a empresa sexa propietaria única dos terreos afectados.
Tendo en conta a situación urbanística descrita, proponse como solución máis adecuada, senón a única, a de modificar a ordenación prevista no planeamento vixente, de 2003, adaptándoo ás necesidades actuais tanto do municipio como da empresa. Esta modificación do PXOM incluiría, por economía administrativa, a ordenación detallada do solo urbano non consolidado.
Cuarta. Convenio, obxecto e contido
Sobre as anteriores premisas, e de acordo co previsto no artigo 165.1 da Lei 2/2016, do solo de Galicia (LSG), que establece que poderán celebrarse convenios entre as administracións públicas e persoas privadas co obxecto de colaborar e desenvolver de maneira máis eficaz a actividade urbanística, exponse a formalización deste convenio de planeamento para que sirva para establecer as bases e os compromisos de colaboración entre as partes implicadas (a Administración e a empresa) para formular e tramitar unha modificación puntual do Plan xeral de ordenación municipal, co fin de conseguir dunha maneira máis áxil os obxectivos propostos, que son, en sínteses, os seguintes:
• Establecer unha ordenación detallada do polígono P-5 que permita:
– Un crecemento en continuidade das instalacións da fábrica existente.
– A creación dunha zona verde que permita unha conexión peonil entre Porto e a zona portuaria, en paralelo á vía férrea.
• Modificar a delimitación do polígono P-5 de maneira que:
– A conexión peonil entre Porto e a zona portuaria quede integramente situada dentro do polígono.
– Se regularice o límite sur do polígono, de maneira que se reduza a incidencia sobre propiedades de particulares e que, ao mesmo tempo, se facilite a formalización dunha permuta co propietario dos terreos necesarios para abrir a conexión ata Porto.
• Axustar os parámetros urbanísticos da ordenanza IN de solo urbano consolidado, para facilitar o crecemento en continuidade das instalacións da fábrica.
• Corrixir a inadecuada clasificación de terreos portuarios.
Quinta. Ámbito do convenio
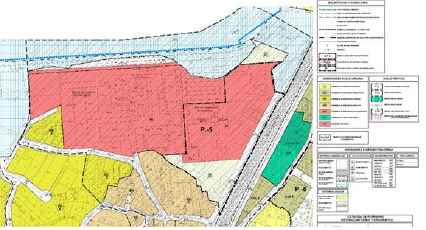
De acordo co establecido no artigo 401.2 do Regulamento da LSG (RLSG), aprobado mediante o Decreto 143/2016, inclúese como anexo ao presente convenio a identificación gráfica do ámbito espacial afectado pola modificación puntual proposta.
Estipulacións:
Primeira.
O presente convenio urbanístico de planeamento subscríbese para establecer un marco de colaboración entre o Concello de Pontecesures, como titular da competencia en materia de planeamento urbanístico no municipio, e Nestlé España, S.A., como propietaria maioritaria dos terreos incluídos no polígono P-5, coa finalidade de favorecer a formulación e tramitación dunha modificación puntual do Plan xeral de ordenación municipal que permita alcanzar os obxectivos anteriormente expostos.
Segunda. Compromisos asumidos por Nestlé España, S.A.
Nestlé España, S.A. comprométese a desenvolver urbanisticamente os terreos incluídos no polígono P-5, de conformidade coa ordenación que se establecerá no planeamento derivado do presente convenio. Para iso, asume os seguintes compromisos:
1. Formulación do borrador da modificación puntual e do documento ambiental estratéxico, no prazo máximo dun mes desde a aprobación do convenio. Os documentos axustaranse aos criterios de ordenación establecidos na estipulación cuarta, e incluiranse tamén as modificacións destes que puidesen resultar necesarias por requirimentos dos organismos que interveñan na súa tramitación.
2. Formulación do estudo ambiental estratéxico, en caso de ser requirido polo órgano ambiental competente, no prazo máximo de 3 meses desde o seu requirimento.
3. Formulación do proxecto de modificación puntual do PXOM, no prazo máximo de 3 meses desde a decisión adoptada polo órgano ambiental competente. O documento axustarase aos criterios de ordenación establecidos na estipulación cuarta, e incluirase tamén as modificacións deste que puidesen resultar necesarias por requirimentos dos organismos que interveñan na súa tramitación.
4. Formulación dos documentos de carácter técnico (estudos arqueolóxicos, de paisaxe, de mobilidade, ...) que puidesen ser requiridos polos distintos organismos que interveñan na tramitación da modificación puntual.
5. Presentación dos documentos técnico-xurídicos necesarios para o desenvolvemento do polígono P-5 (proxectos de equidistribución e de urbanización), no prazo máximo de 3 meses desde a aprobación definitiva da modificación puntual.
6. Execución das obras de urbanización correspondentes ao polígono P-5 (aparcadoiro e zona verde-parque lineal) e as da zona verde ao nordés do polígono (remate do parque lineal), nas condicións e prazos que se definan no proxecto de urbanización.
Todos os documentos presentados pola empresa deberán axustarse ás determinacións da lexislación urbanística e ambiental aplicable no momento da súa presentación.
Terceira. Compromisos asumidos polo Concello de Pontecesures
O Concello de Pontecesures comprométese a realizar a tramitación da modificación puntual da maneira máis áxil e rápida que sexa factible, para facela aplicable no menor tempo posible.
En prol de conseguir a celeridade pretendida, no caso de que antes da ratificación do presente convenio a empresa presente o borrador da modificación puntual e do documento ambiental estratéxico, procederase á súa tramitación simultánea ante o órgano ambiental competente, sen que isto xere dereito a indemnización ningunha no caso de que finalmente o convenio non fose ratificado polo Pleno municipal.
En relación coa edificabilidade correspondente ao 10 % de cesión do aproveitamento lucrativo que debe asignarse ao Concello de Pontecesures, de conformidade co disposto no artigo 29 da LSG, acórdase no presente convenio a posibilidade de monetizar a dita cesión, de maneira que Nestlé España, S.A. sexa o propietario único da parcela de resultado con aproveitamento lucrativo do polígono P5.
Por tanto, o Concello de Pontecesures comprométese a admitir a substitución do deber legal de cesión do aproveitamento urbanístico correspondente ao Concello mediante o pagamento dunha cantidade en metálico. Para isto, e de conformidade co previsto no artigo 400.2 do RLSG, antes da formalización do proxecto de equidistribución correspondente, subscribirase o preceptivo convenio urbanístico para a execución do plan, no cal se incorporará unha valoración pericial realizada de conformidade co establecido no texto refundido da Lei do solo e rehabilitación urbana (Real decreto lexislativo 7/2015, do 30 de outubro) e no Regulamento de valoracións da Lei do solo (o Real decreto 1492/2011, do 24 de outubro), e que deberá estar expresamente validada polo persoal técnico competente do Concello.
Cuarta. Ordenación proposta
Establécense uns parámetros básicos para os efectos de acoutar a ordenación detallada que se incluirá na modificación puntual:
• Delimitación do polígono P-5: axustarase polo lado sur, permitindo a conexión co Camiño dos Mariñeiros, e facilitando a regularización parcelaria co propietario lindeiro.
• Ordenación detallada do polígono P-5:
– Xeración dunha zona verde lineal no bordo este, cunha largura de 10 metros que se poderá reducir no treito final (o de conexión co Camiño dos Mariñeiros).
– Xeración dunha superficie para aparcadoiro de uso público que permita o cumprimento dos estándares establecidos no artigo 42 da LSG.
– A zona edificable resultante (a superficie total menos a de zona verde e a de aparcadoiro) rexerase pola ordenanza de edificación industrial, cos parámetros urbanísticos que dela deriven.
• Ordenanza IN: modificaranse os seguintes parámetros urbanísticos:
– Ocupación máxima: pasará do 60 % ao 100 % da superficie resultante unha vez descontada a superficie afectada polos recuamentos mínimos a lindeiros.
– Edificabilidade máxima: pasará de 0,60 m2/m2 a 0,78 m2/m2.
– Recuamentos a lindeiros: mínimo 5 metros, excepto no suposto de lindeiros entre parcelas do mesmo propietario, en que se permitirá o acaroamento.
• Clasificación de solo: ademais dos cambios de clasificación derivados da nova delimitación do polígono P-5 (os terreos que se inclúan pasarán a clasificarse como solo urbano non consolidado, e os que se exclúan, como solo urbano consolidado ordenanza de edificación en núcleo grao extensivo), clasificaranse como sistema xeral portuario os terreos de Portos de Galicia (zona a no gráfico 2) e como sistema local de espazos libres e zonas verdes os terreos que non son de Portos de Galicia (zona b no gráfico 2).
Quinta. Subrogación do propietario dos terreos
O alleamento da totalidade ou parte da terreos propiedade dos asinantes do presente convenio non modificará nin alterará os compromisos contraídos nel. Os novos propietarios quedarán subrogados nos dereitos e obrigacións do transmitente, o cal deberá facer constar os compromisos asumidos nos actos translativos do dominio e, en tal caso, poñer en coñecemento do Concello de Pontecesures o feito da transmisión e os datos dos novos titulares. Para ese efecto, o transmitente deberá presentar copia autorizada da/das escritura/s de transmisión de dominio e subrogación dos adquirentes nos dereitos e obrigacións derivados do presente convenio.
Sexta. Modificacións e eficacia do convenio
A validez do presente convenio queda supeditada ao seu sometemento a información pública polo prazo legalmente establecido, e á súa ratificación polo Pleno municipal, así como aos demais requisitos previstos na lexislación urbanística vixente.
No caso de que durante a tramitación da modificación puntual xurdise a necesidade de alterar as determinacións previstas no presente convenio, como consecuencia da exixencias que puidesen expor os distintos organismos sectoriais con competencia na materia, o Concello de Pontecesures comprométese a notificar á outra parte esta situación, concedendo un prazo de 30 días hábiles para reconsiderar e, de ser necesario, formalizar un novo convenio axustado ás novas circunstancias.
En proba de conformidade con todo o acordado, asinan o presente convenio por duplicado exemplar e para un único efecto, no lugar e na data indicados no encabezamento.
ANEXO
Ámbito afectado polo convenio

Segundo. Notificar e emprazar a persoa ou persoas interesadas, para os efectos de que se asine o convenio urbanístico arriba referenciado, nun prazo de quince días desde a notificación da aprobación do texto definitivo.
Transcorrido este prazo sen que o convenio fose asinado, quedará sen efecto.
Terceiro. Publicar o texto íntegro do convenio, xunto co seu acordo de aprobación, no Diario Oficial de Galicia.
Cuarto. Anotar o convenio no Rexistro de Convenios Urbanísticos do Concello e custodiar un exemplar completo do seu texto definitivo e de toda a súa documentación anexa no arquivo administrativo municipal.
Pontecesures, 16 de xuño de 2023
Juan Manuel Vidal Seage
Alcalde
