La Xunta adjudica la redacción del proyecto del nuevo centro de salud de Muíños
El contrato, adjudicado por un importe de cerca de 55.000 euros, se firmará en los próximos días para iniciar la redacción del proyecto de forma inmediata
La inversión estimada para su construcción es de más de 786.000 euros, si bien el presupuesto final quedará determinado por el proyecto
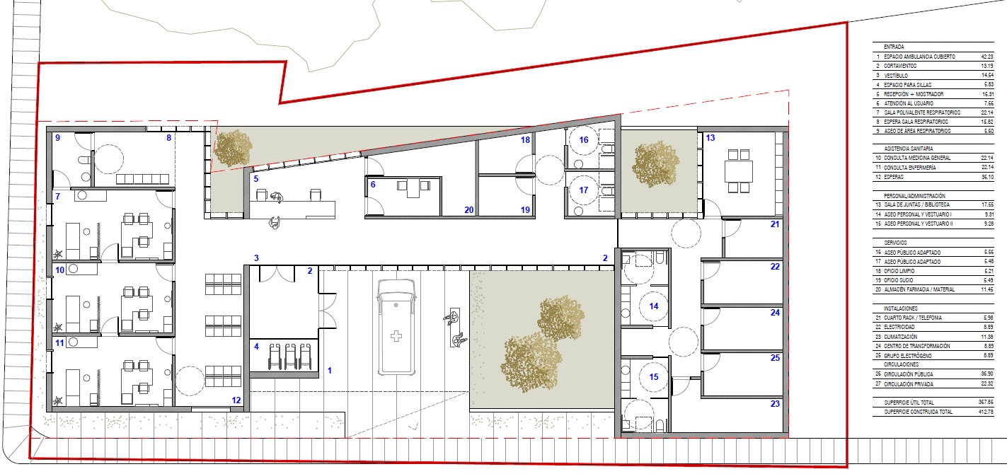
El centro contará con consultas de medicina general y de enfermería, área de respiratorios, un espacio cubierto para la ambulancia y recepción con zona de espera
La Xunta ha adjudicado el contrato de redacción del proyecto del nuevo centro de salud de Muíños.
El contrato, adjudicado a la empresa Castroferro Arquitectos SCP por un importe de cerca de 55.000 €, se firmará en los próximos días para, a continuación, iniciar ya la redacción del proyecto.
El objetivo del contrato es definir una idea global del edificio y de su urbanización, con la concepción constructiva y de instalaciones.
La inversión estimada por el Gobierno gallego para la ejecución del nuevo centro de salud es de más de 786.000 euros, si bien el presupuesto final quedará concretado con la redacción del proyecto.
La intervención se enmarca en el convenio de colaboración entre la Consellería de Sanidade y el Ayuntamiento de Muíños. En desarrollo del mismo, el Ayuntamiento puso a la disposición de la Xunta una parcela de 800*m2 para construir el centro de salud.
La parcela se sitúa en una zona próxima al núcleo de Mugueimes, donde ya existe en la actualidad otro centro de salud. La situación está próxima a la Casa del Ayuntamiento, al campo de fútbol, a la Residencia de Mayores “Virxe da Clamadoira”, a la farmacia y a todos las equipaciones públicas y privadas del ayuntamiento de Muíños.
Características técnicas
En cuanto a las características del nuevo centro de salud, se trata de un edificio con una superficie 412,78 m2 construidos.
La implantación propuesta se adapta a la parcela, que está en pendiente, para obtener una relación equilibrada entre los trabajos de relleno y desmonte y para que el espacio no ocupado por el centro de salud quede integrado dentro del mismo.
En este sentido, el volumen de la asistencia sanitaria se retraquea ligeramente de la alineación para que las fachadas de mayor altura no se eleven inmediatas a la acera.
Los usos se distribuyen de manera esquemática formando una U. En el centro se sitúan la zona de recepción y servicios. El área oeste se destina a los usos de asistencia sanitaria, mientras que al este, contra pendiente y en una zona más privada, se sitúan las instalaciones y el área de personal.
Todas las consultas se orientan hacia el oeste, siendo la fachada con mayor altura con respecto al terreno. La sala polivalente de respiratorios se sitúa inmediatamente próxima a la recepción, con zona de espera y aseo propio conectado con la consulta.
El edificio se diseñará con materiales que priman la integración y la funcionalidad. Así, en los cuerpos extremos, se optará por una cubierta inclinada de zinc que acompaña la pendiente del terreno, por su durabilidad y escasa necesidad de mantenimiento. En el cuerpo central, se usará una cubierta vegetal por su buen funcionamiento energético y por la mayor sostenibilidad, reteniendo agua de lluvia y ayudando a purificar el aire. El acabado exterior combinará materiales durables, como hormigón, acero y aluminio.
La solución para la compartimentación interior se resolverá mediante carpintería de madera, que permite dotar de un aspecto cálido más amable para el usuario, así como una funcionalidad acústica adecuada.
 
											
											 
											
											 
											
											 
											
											 
											
											 
									 
									 
									 
									 
									 
										 
										