El Ayuntamiento de Castro de Rei remite proyecto de delimitación del núcleo rural de O Caxigal, datado en abril 2015 y suscrito por la consultora Monsa Urbanismo, S.L., a los efectos de su aprobación definitiva, conforme a la disposición adicional segunda.2 de la vigente Ley 9/2002, de ordenación urbanística y protección del medio rural de Galicia.
Analizada la documentación remitida y visto el informe propuesta de la Subdirección General de Urbanismo, resulta:
I. Antecedentes.
I.1. El Ayuntamiento de Castro de Rei carece de figura de planeamiento general. El ámbito afectado por el presente expediente se rige por las normas de aplicación directa de la LOUG y, en el que no se opone a éstas, por las normas complementarias y subsidiarias de planeamiento provincial aprobadas el 3.4.1991.
I.2. Por lo que respeta a la tramitación del presente expediente, consta:
– Aprobación inicial (decreto de Alcaldía 76/2014, de 24.3.2014).
– Exposición pública (5.4.2014-24.5.2014), mediante anuncios en El Progreso del 4.4.2014, La Voz de Galicia de 4.4.2014 y DOG de 24.4.2014. Según certificación municipal, durante dicho trámite no se presentaron reclamaciones.
– Emisión del informe de la Dirección General de Telecomunicaciones (16.3.2015), de carácter favorable.
– Emisión del informe de la Dirección General del Patrimonio Cultural (7.4.2015), favorable condicionado.
– Aprobación provisional del proyecto de delimitación (11.7.2015).
II. Aspectos generales. Contenido.
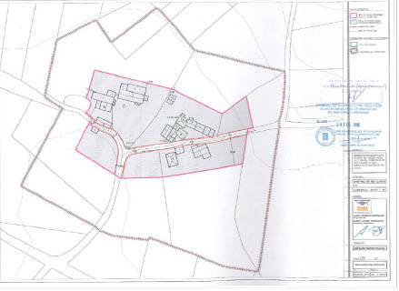
II.1. Se proponen la delimitación del asentamiento poblacional de O Caxigal, perteneciente a la parroquia de Ramil, como núcleo rural histórico-tradicional.
II.2. El proyecto delimita el núcleo, define el trazado de la red viaria existente, regula las condiciones urbanísticas aplicables en el núcleo, y cataloga varias construcciones de carácter tradicional, incorporando medidas de protección.
III. Análisis y consideraciones.
III.1. En cuanto al cumplimiento de informes sectoriales, en el proyecto aprobado provisionalmente se encuentran integradas las condiciones impuestas en el informe favorable de Patrimonio Cultural, en el sentido del deber de respetar las alineaciones consolidadas por las edificaciones y cierres tradicionales.
III.2. El asentamiento cumple el artículo 13 de la LOUG para núcleos rurales; cuenta con topónimo oficial –O Caxigal– reconocido en el Nomenclátor oficial de entidades de la provincia de Lugo (Decreto autonómico 6/2000); y consigue el requisito de consolidación mínima exigida del 50 % establecido en el artículo 13.3.a) de la LOUG.
III.3. Se comprueba que se acredita el cumplimiento de los requisitos establecidos por la disposición adicional segunda.2 de la LOUG.
De acuerdo con el punto 2 de la disposición adicional segunda de la LOUG, y con el artículo 3.a) en relación con la disposición transitoria segunda del Decreto 129/2015, de 8 de octubre, por lo que se establece la estructura orgánica de las consellerías de la Xunta de Galicia, la competencia para resolver sobre la aprobación definitiva de los expedientes de delimitación de suelo de núcleos rurales le corresponde a la secretaria general de Ordenación del Territorio y Urbanismo.
IV. Resolución.
Visto cuanto antecede, resuelvo:
IV.1. Aprobar definitivamente la delimitación de suelo de núcleo rural histórico-tradicional de O Caxigal, parroquia de Ramil, del Ayuntamiento de Castro de Rei.
IV.2. Contra esta resolución cabe interponer recurso contencioso-administrativo ante el Tribunal Superior de Justicia de Galicia, en el plazo de dos meses, que se contarán desde el día siguiente al de su publicación, de conformidad con lo dispuesto en los artículos 10 y 46 de la Ley 29/1998, de 13 de julio, reguladora de la jurisdicción contencioso-administrativa.
IV.3. Notifíquese al Ayuntamiento; y publíquese en el Diario Oficial de Galicia.
Santiago de Compostela, 29 de febrero de 2016
María Encarnación Rivas Díaz
Secretaria general de Ordenación del Territorio y Urbanismo
ANEXO



